樹人館を取り巻く利用活動 & LINK

リサイクルバザー
「いろいろ市」
日曜農業
無農薬 共同稲作 
「かかしの会」
手作り
コンサート
with BOOKS CORE
愛川シネマクラブ

1995年に「レディスプラザ(中津公民館)」ができるまで地域の文化活動のタネを撒いた功績は大きい。


愛川町 
Love River Town

   寺子屋学習塾 樹人館 コミュニティ ホール 

間伐丸太材・製材端材・梱包用パレット廃材 再利用 建築

Community Hall "Kijinkan" 1984

Nakatsu , Love River Town , Kanagawa Pref.

 子供達をスポイルする既存の学校教育、学習塾に業を煮やし、脱サラオーナー(講師先生)自ら、再利用材の自力建設に汗した、「ふれあい学習塾」 &  コミュニティホ−ル / 木造校舎復活へのの先例提案。

 「ただ単にゴミにしない」用材と、子ども達の教室・遊び場 /
 自然に還っていく風化の時間と、子ども達の成熟を見守る目には、
共に共通の思いが感じられる。 

1984〜1986

self-built by client owner
クライアント オーナー自力建設 (メインフレーム=professional外注)

floor : reused packing-frame & pallet wood
床材 : 梱包用パレット廃材再利用

column , wall , ceiling : thinned-out  round timber , slab
柱、内装壁・天井材 : 間伐丸太〜端材利用

heat exchange slab basement ( fillled with gravel)
蓄交換砂利床ベタ基礎

inner wall : fire protecting cement plate
壁内 : 防火セメント板構造

aeration inner roof
屋根下通気廃熱構造

樹人館2階 /寺子屋学習塾教室(夜) 

兼/セミナーオープンルーム  




 
1階
 樹人館1階 /会合・催し・多目的ホール
南面窓より/付近の景色 1999 

’99年5月16日の 第21回 いろいろ市 風景


喫茶コーナー
喫茶コーナー
喫茶コーナー
安い
美味しい
焼きたて

三拍子揃い
 

喫茶コーナー
スタッフ
 


妹尾隆一郎 @ 樹人館


続木 力 @ 樹人館

八木のぶお @ 樹人館

 

長谷川きよし @ 樹人館


基本設計/材料アドバイス・監修 
by
 おおき設計 建築設計室
 (一級建築士事務所)



 
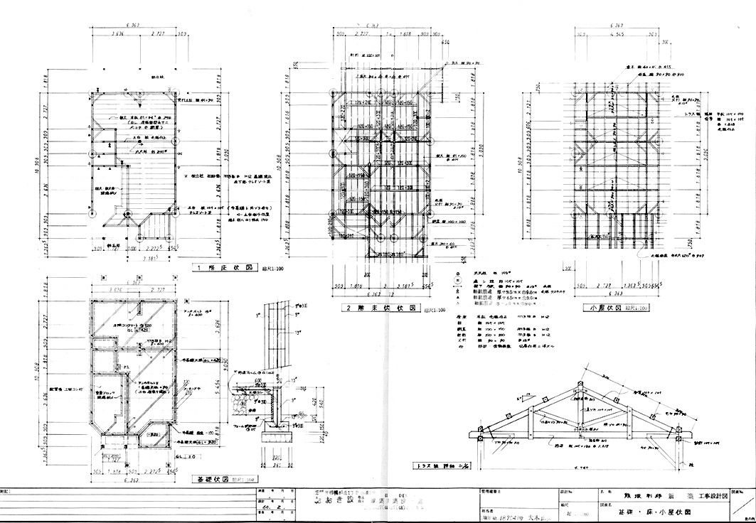
(注)樹人館の工事は、(構造部分を除く)意匠工事をすべて建築主のたっての要望=セルフビルド(自力作業)によったため、長期・完成「途上」物件です。
(設計者:おお木まさみ)

構造基礎工事:施主直営系
構造木工事・屋根工事:「中村建築」中村喜昭

部材(製材端材ほか):愛川森林組合

 



粒度調整(径40mm前後のサイズ均一砂利)充填・蓄熱ベタ基礎

構造基礎工事:施主直営系

 

構造木工事・屋根工事:「中村建築」中村喜昭
部材(製材端材ほか):愛川森林組合